R2502 GUIDO GEZELLESTRAAT

uitbreiding, rijwoning, Melle, 2025

R2405 BEEWEG

uitbreiding, woning, Lochristi, 2024

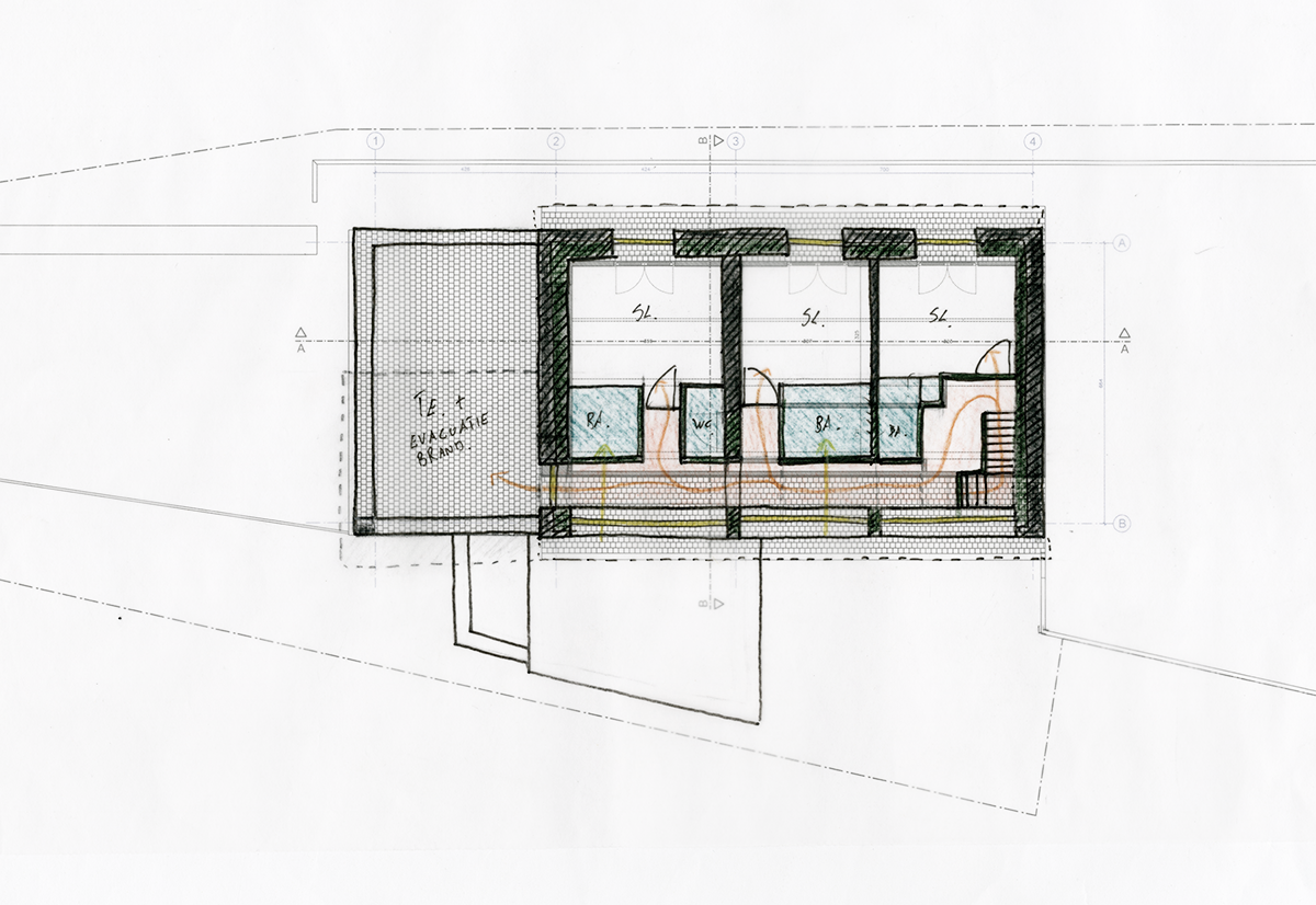
R2402 OSCAR DE REUSESTRAAT

optopping rijwoning, Sint-Amandsberg, 2024

R2401 LEMBERGSESTEENWEG

verbouwing villa, Merelbeke, 2024

R2310 ROZEBROEKSLAG

uitbreiding woning, Sint-Amandsberg, 2023

R2306 VICTOR BRAECKMANLAAN

Verbouwing burgerwoning, Gent, 2023

R2304 EDGAR VAN PEENESTRAAT

Verbouwing rijwoning, Zelzate, 2023

R2204 AINE DURBUY

Verbouwing vakantiewoning, Durbuy, 2022

R2201 GENKERSTEENWEG

Verbouwing Franse villa, Hasselt, 2022

R2205 (BUREAU)TAFEL KOMPAS V

Bureaublad met onderstel, 2022

Opdracht:
Programma:
Klant:
Locatie:

Verbouwing
Vakantiewoning
Privé
Durbuy